| Impressum

 
  | Projekte

| Vita

| Kontakt

 
    zurück zur Übersicht
 
   
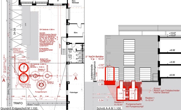
    Abwasserneutralisation 2013
Ausführungsplanung und Ausschreibung
 
   
   

:

 

 

  SVEN FISCHER    Wattenbergstraße 22    21075 Hamburg    Telefon: 040 / 79144841     E-Mail: director@sven-fischer.biz